Category
Price
Min Price
Max Price
Beds
Baths
SqFt
Acres
You must be signed into an account to save your search.
Already Have One? Sign In Now
251117 Banner Elk, NC 28604
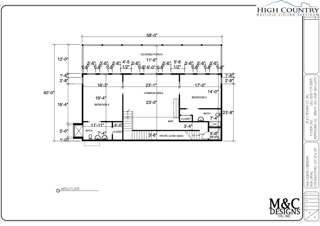
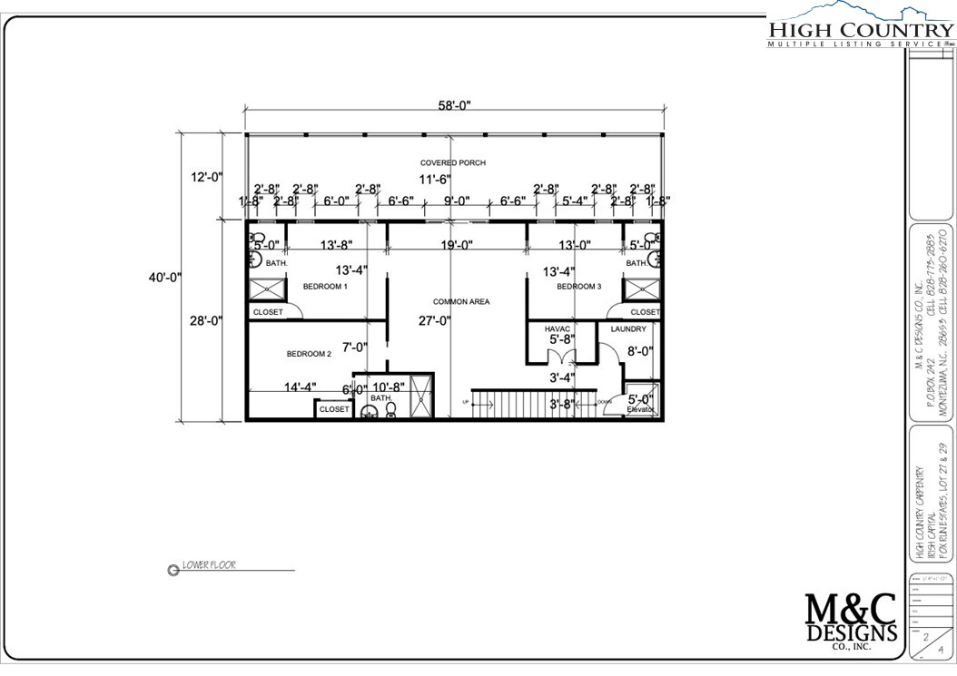
5
Beds
5.5
Baths
4872
Sqft
1.200
Acres
$2,800,000
For Sale















































Panoramic, breathtaking LONG RANGE southern exposure views located in the Fox Run Estates community! The four-story build is currently ongoing as per the photos attached and description below; floor plans are included in the photos as well! Buyer has the ability to pick out finishes at the contracted builder's discretion, creating an opportunity for many customizations such as flooring, fixtures, appliances, etc. The lot is located at the end of the road for added privacy. This gated community has underground utilities, paved roads and very affordable living costs... not to mention one of the most famous views in the area! OCTOBER 2025 UPDATE: Interior framing is complete (Note: The interior photos included do not include the updated rough-ins). Data network wiring, elevator shaft, and trade rough-ins (electrical/plumbing/HVAC) are complete. Exterior siding, paint, and staining are complete. Ongoing construction includes: driveway clearing/gravel, exterior lighting and porch ceilings, and insulation/drywall. Estimated completion date: early 2026.
Listing ID:
251117
Property Type:
Single Family
Year Built:
2025
Bedrooms:
5
Bathrooms:
5 Full, 1 Half
Sqft:
4872
Acres:
1.200
Garage/Carport:
1
Map
Latitude: 36.183640 Longitude: -81.858725
Location & Neighborhood
City: Banner Elk
County: Avery
Area: 8-Banner Elk
Subdivision: Fox Run Estates
Environment
Utilities & Features
Heat: Zoned
Sewer: Not Connected, Sewer Applied For Permit
Utilities: Cable Available, High Speed Internet Available
Appliances: Other, See Remarks
Parking: Basement, Garage, One Car Garage, Gravel, Shared Driveway
Interior
Fireplace: Gas, Vented
Sqft Living Area Above Ground: 4872
Sqft Total Living Area: 4872
Exterior
Style: Mountain
Construction
Construction: Other, See Remarks, Wood Frame
Garage: 1
Roof: Architectural, Shingle
Financial
Property Taxes: $526
Other
Price Per Sqft: $575
Price Per Acre: $2,333,333
The data relating this real estate listing comes in part from the High Country Multiple Listing Service ®. Real estate listings held by brokerage firms other than the owner of this website are marked with the MLS IDX logo and information about them includes the name of the listing broker. The information appearing herein has not been verified by the High Country Association of REALTORS or by any individual(s) who may be affiliated with said entities, all of whom hereby collectively and severally disclaim any and all responsibility for the accuracy of the information appearing on this website, at any time or from time to time. All such information should be independently verified by the recipient of such data. This data is not warranted for any purpose -- the information is believed accurate but not warranted.
Our agents will walk you through a home on their mobile device. Enter your details to setup an appointment.